Dzīvojamās mājas Mārupē, Upesgrīvas ielā 37 atjaunošanas projekts




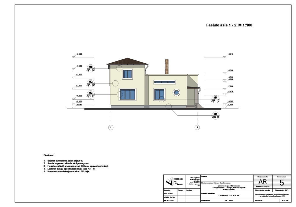
Izstrādāts Dzīvojamās mājas Mārupē, Upesgrīvas ielā 37 atjaunošanas projekts, kas paredz ēkas siltināšanu un telpu pārplānošanu ieejas mezgla, virtuves un vannas istabas zonā. Ēka celta no skaidbetona, līdz ar to ir diezgan trausla. Energoefektivitātes rādītāji neapmierināja saimniekus un tika nolemts ēku papildus siltināt ar 150 mm Paroc Linio akmens vates plāksnēm. Tāpat paredzēts izbūvēt otru sanitāro mezglu un lielu virtuves zonu, kas apvienota ar ēdamistabu.
© 2024 arhitekts Ivo Inša
sertifikāts Nr. 1-00937
